Apartman 28.45m2 Jahorina Vučko Residence
Jahorina, Pale, BIH
189.000KM
6 750 KM/m²
Tip
Stan
Površina
28 m²
Struktura
1
Detalji
- Tip
- Stan
- Struktura
- 1
- Cijena
- 189.000KM
- Površina
- 28 m² (6 750 KM/m²)
- Sprat
- 6
- Ukup. spratova
- 9
- Ažuriran
- 09.12.2025
- ID
- 679
Opis
Stanpromet.ba – agencija za nekretnine iz svoje ponude za prodaju izdvaja apartman površine 28.45m2 u Vučko Residence, Jahorina.
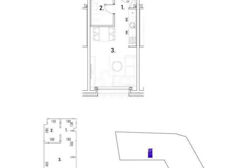
Apartman površine 28.45m2 se nalazi na 6.spratu zgrade sa liftom i sastoji se od ulaznog hodnika, dnevnog boravka s trpezarijom i kuhinjom i kupatila.
Vučko Residence apartmani su dokaz da moderno i rustikalno mogu činiti savršen spoj za udoban planinski ambijent, dok istovremeno na raspolaganju imate sve što vam je potrebno za ugodan boravak na Jahorini. Javite nam se već danas ukoliko ste zainteresovani za kupovinu apartmana u Vučko Residence.
Dokaz da moderno može činiti savršen spoj za udoban planinski ambijent, dok istovremeno na raspolaganju imate sve što vam je potrebno za ugodan boravak na Jahorini. Javite nam se već danas ukoliko ste zainteresovani za kupovinu apartmana u Vučko Residence.
Za sve informacije pozovite svog agenta za nekretnine!
Certificirana agencija za nekretnine Stanpromet.ba Nekretnine
Registarski broj posrednika 001/2022!
Grbavička 8b, 71000 Sarajevo
Agent Hadis
+ 387 62 830... Prikaži broj
[email protected]
Kontakt info
- Agencija
-
Stanpromet
- Kontakt osoba
- Hadis Kadić
- Mobilni telefon
- 06283... Prikaži broj ; 03384... Prikaži broj
- Adresa
- Grbavička 8b
- Sarajevo, BIH
Slične nekretnine
Opremljen Apartman 35 kvadrata Obućina Bare Jahorina
- 189.900KM 35 m2
Jahorina Apartman 37,51 m2 Dvije Spavaće Šator
- 189.931KM 37 m2
Snježna dolina opremljen apartman jedna spavaća prodaja Lamela 7
- 190.000KM 30 m2
Opremljen Apartman 37 kvadrata Obućina Bare Jahorina
- 191.500KM 37 m2
Odličan studio apartman prodaja Poljice Jahorina
- 194.000KM 26 m2
Apartman Opremljen 36m2 prodaja Jahorina
- 195.000KM 36 m2
Opremljen studio apartman 28.5m2 pogled staza Vučko Jahorina
- 181.000KM 28 m2